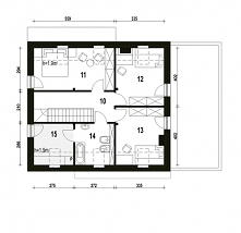
0
Polecamy
Dolny Śląsk
Obserwują 15 598
Lublin
Obserwują 155
Polska
Obserwują 38
Wrocław
Obserwują 203
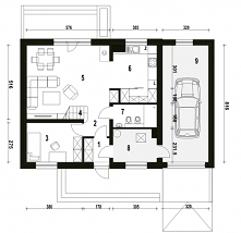
3
2
1
4
46
22
Witaj na Zszywacz.pl! Załóż konto i zyskaj.