eks
na Zszywacz.plPolecamy
1
1
0
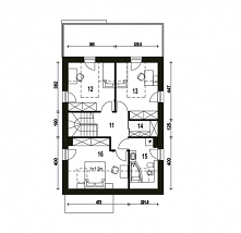
Makolągwa jest nowoczesnym, optymalnym domem. P...
gosterpl Ja raczej wolę osobny garaż nie połączony z domem, pewnie sam będę stawiał tutaj http://przecinar...
2
1
0
eks
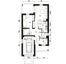
Makolągwa jest nowoczesnym, optymalnym domem. P...
modelerc A mi podoba się bardzo ten projekt, balustrady wykonane pewnie ze stali nierdzewnej lub ocynkowan...
1
1
0
Makolągwa jest nowoczesnym, optymalnym domem. P...
modelerc Fajnie wykonane krzesła i stół, to pewnie stal malowana proszkowo, warto zapoznać się z ofertą pr...
2
1
0
Makolągwa jest nowoczesnym, optymalnym domem. P...
artdecorpl Kominek zdecydowanie dodaje uroku temu pomieszczeniu, warto zapoznać się tutaj https://www.bomar-...



